Architectural Design &
Municipal Submission
Stage 1-4.1
Welcome to the world of architectural excellence, where innovation meets precision. At our core, we are the creators of vision, transforming your dreams into tangible reality.
We specialize in crafting new designs, implementing modifications, creating breathtaking visualizations, and providing personalized engagement to fulfill your every need. very project is a unique canvas, and we are your artists, diligently working to blend aesthetics, functionality, and compliance into a masterpiece. Your vision is our muse, and your satisfaction is our ultimate goal.
Welcome to a world where architectural dreams come to life, and regulatory hurdles are gracefully overcome.
Architectural Design
Stage 1-3: Design
Our project development process, involving Stages 1 – 3, is all about the design journey.
From the inception of your project, we thoroughly evaluate your requirements, site limitations, budget constraints, and timelines. We identify the need for consultants, navigate legal requirements, and establish the groundwork for a successful project launch.
Moving into the Concept and Viability phase, we translate your vision into a concrete concept. This stage involves spatial planning, material selection, and engagement with local authorities to ensure your project’s viability.
As we progress to the Design Development stage, we refine the concept into a comprehensive design. This includes specifying construction systems, materials, and detailed technical specifications. Our team collaborates seamlessly with consultants and oversees the building plan approval process.






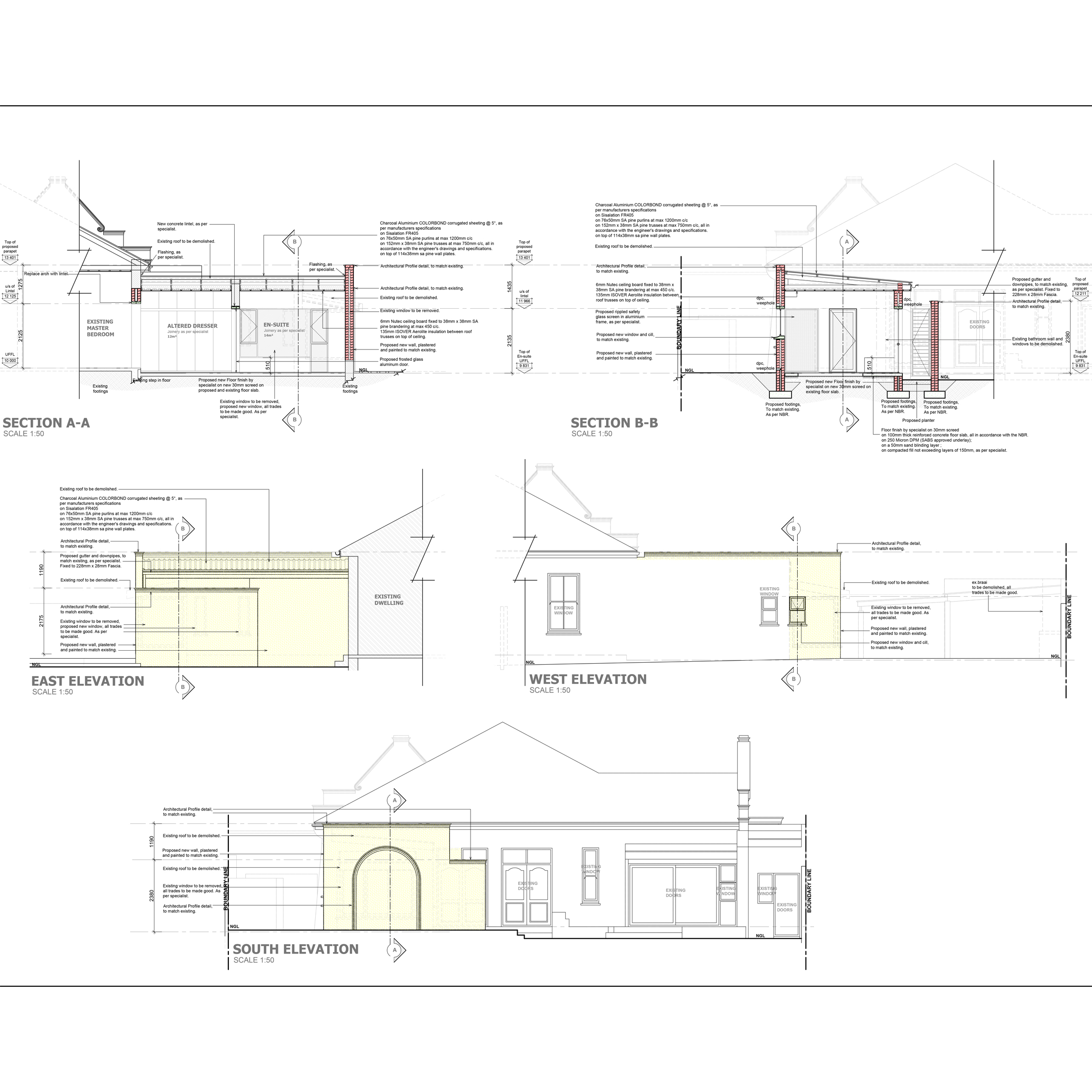
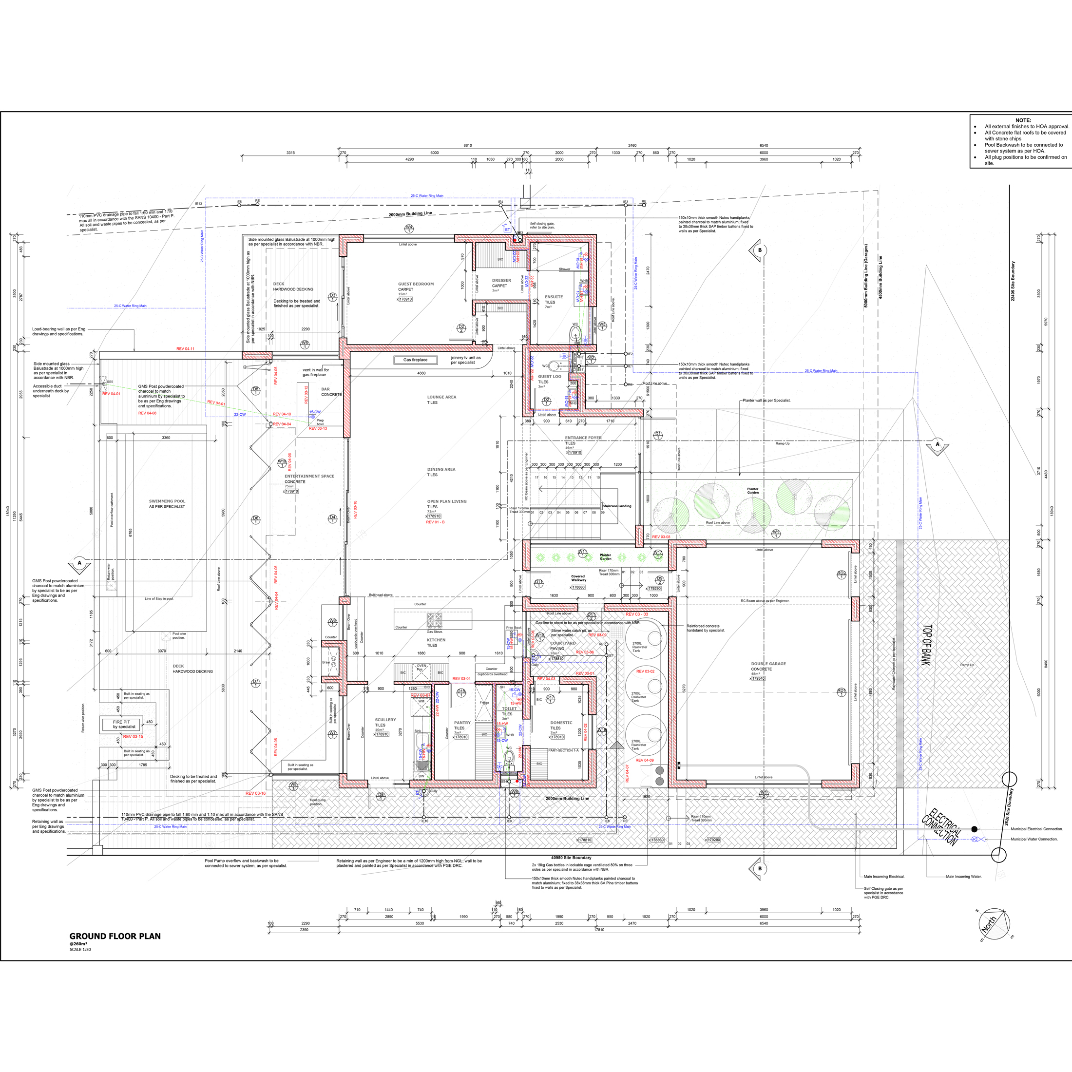
STAGE 4.1: DOCUMENTATION AND MUNICIPAL SUBMISSION
This stage is a critical part of your project’s journey.
We assemble all necessary documentation required for the local authority’s building plan approval process, ensuring full compliance with regulatory standards.
Additionally, we work closely with our team of consultants to ensure that technical documentation aligns seamlessly with your project’s vision, providing the essential foundation for a robust building plan submission.
Simultaneously, we review project costs and schedules in collaboration with our consultants. This ensures that the financial aspects and timelines align with your expectations for the project.
Finally, with your approval, we submit the meticulously prepared documents to the local authority for authorization, marking a critical milestone in the progression of your project.
READY TO START YOUR PROJECT WITH US?
For questions, feedback, or inquiries, please contact us at info@blackhoundenterprises.com. We’re here to help!
Client Praise
It was a pleasure collaborating with Dewald and Hannes. They were perceptive to our unique needs and challenges and helped us to finally settle on a plan within our budget. Mostly, they were incredibly patient and understanding. Thanks guys.
Julle het op kort kennisgewing vir ons met ‘n groot projek gehelp. Dankie vir julle geduld en visie. Dis meer en mooier as wat ons verwag het. Baie dankie!
When we were at our wits end with projects piling up and too little time we reached out to Hannes. We’d seen his work on Instagram so had high expectations. We weren’t disappointed. He knocked it out of the park for us and our clients, and in great time. We continue to collaborate with Blackhound on speciality projects and do so with absolute peace of mind. True professionals
It has been a good 5 years now working on an ongoing basis with Hannes from Blackhound Architecture and Rendering. It is always a professional yet fun experience, and I can highly recommend them to anyone that is looking for a dynamic take on their design project. The service is impeccable
Let's Get Social
Join the conversation and stay visually inspired.





